本項目位于龍華觀瀾高爾夫大道5號觀瀾湖國際大廈,是一個新中式辦公室裝修案例。入口處古銅鋼板打造的門洞深邃,神秘進入木質隔斷圍合的門廳通過自然光的照射呈現不同層次的光影變化,設計師稱它為光之盒子。前臺的巖石背景通過手工敲打造型,觸感自然而溫潤,接待臺白橡木、金屬、皮革組合穿插,如水面泛起漣漪的茶幾臺面,呈現當代與自然的融合。推開木格柵移門可進入接待與休息區,通過35米格柵長廊把各個空間串聯起來,同時格柵門又可以把各個空間做分隔,保證會議室及開放辦公空間獨立性。會議室由旋轉的木門與廳隔離開來形成一個半封閉的獨立空間,木、藤編、金屬做成序列感的飾品陳列架承載著以往的成果與榮譽 ,引入現代科技會議系統,便捷、高效。整體空間抽象與具象中和,簡練與東方的自然氣質交織 ,除了自然元素與材料,空間沒有過多的裝飾。

深圳龍華觀瀾新中式辦公室裝修入口的木格柵屏風強調當代辦公空間與自然的融合。

深圳龍華觀瀾新中式辦公室裝修入口處的雕塑喚醒人們心中對藝術的崇拜和向往。

深圳龍華觀瀾新中式辦公室裝修的入口過道呈現出一個自然靜謐的空間。

深圳龍華觀瀾新中式辦公室裝修的過廊找到人與人之間融洽的距離。

深圳龍華觀瀾新中式辦公室裝修的接待廳仿佛找到讓人打開心靈的鑰匙。

深圳龍華觀瀾新中式辦公室裝修過廊的光影效果仿佛希望每一個進入空間的人都能找到自己的心。

深圳龍華觀瀾新中式辦公室裝修的大會議室平常,門是半掩的狀態,室外的光能通過格柵木門投射到接待區打開旋轉門與廳結合。

深圳龍華觀瀾新中式辦公室裝修大會議室的開闊空間也是公司舉辦派對的活動場地。

深圳龍華觀瀾新中式辦公室裝修大會議室的家具組合展現空間功能的思想性。

深圳龍華觀瀾新中式辦公室裝修董事長辦公空間的書柜原木與漆面結合運用,虛實柜體關系滿足收納,又達到展示需求,寬大辦公桌實木與皮革結合,舒適且滿足設計中不的同功能需求。

寬大玻璃幕墻可以擁有充足照明。

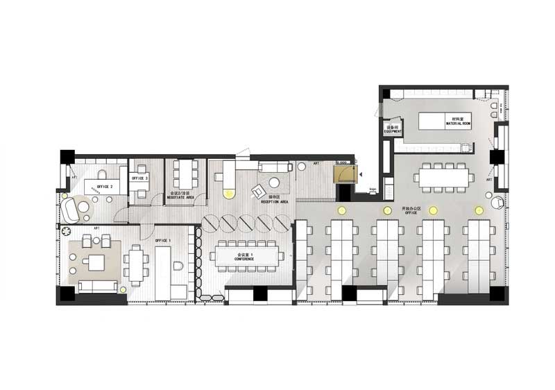
深圳龍華觀瀾新中式辦公室裝修—平面布置圖







