項目地點:深圳市南山區南油
設計理念:本案位于深圳市南山區南油,是一所現代輕奢風的美容院店面裝修設計案例,由深圳信欣裝飾公司設計團隊擔綱設計。 整體空間色調以黑白兩種顏色構成,凸出了簡潔,大氣,明亮的奢華感。門廳以完全開放的設計方式,半圓弧的造型,畫出一道美麗的弧形,搭配店里暖黃的燈光,白色的LOGO看上去更耀眼,更閃亮。大廳內分為美甲區,休息區,單人美容間等幾個功能性區域,配套設施完善而專業。大廳黑色天然大理石的地面,紋理豐富多變,波光粼粼般閃耀。頂面根據原始結構三角形石膏頂加橫梁,作為一個區域的劃分。一抹天空般湛藍的樓梯,精致的家具,香檳金的柱子裝飾。低調而奢華,簡潔中但不缺乏品味感,通過細節的刻畫,用心的點綴,給客戶一種法式貴族般的奢華享受,和生活的儀式感。

深圳市南山區南油輕奢風美容店裝修設計外立面
輕奢風美容店裝修設計門廳,敞亮開闊的落地,黑白相間的配上,一縷金屬的幕簾傾瀉而下,形成了復古優雅的美感。

深圳市南山區南油輕奢風美容店裝修設計前臺
輕奢風美容店裝修設計前臺,灰色天然水泥肌理的前臺,灰白色彩的抽象畫,簡約而出眾雅致風。

深圳市南山區南油現代風美容店裝修設計玻璃扶手
輕奢風美容店裝修設計樓梯,黑色的天然大理石樓梯,搭配白色的燈條和玻璃的扶手,冷色調的奢華感。

深圳市南山區南油輕奢風美容店裝修設計美甲區

深圳市南山區南油輕奢風美容店裝修設計美甲區二
輕奢風美容店裝修設計美甲區,黑白的大廳色調搭配,黃色的儲物格,紅色的椅子,兩種跳躍性的色彩,讓整個大廳活躍而不單調。

深圳市南山區南油輕奢風美容店裝修設計美容間
輕奢風美容店裝修設計美容間,魚骨紋拼圖的地面,白色楓木的壁爐柜裝飾,配備美容床和浴缸,歐式的精致生活體驗。

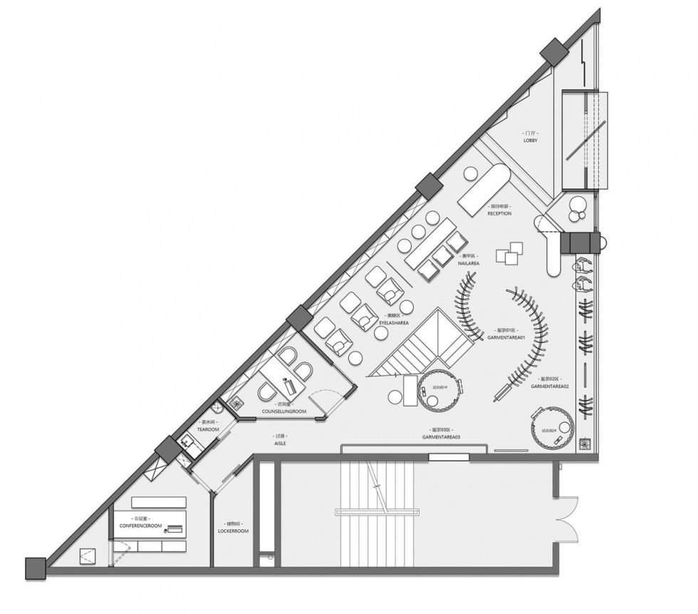
深圳市南山區南油輕奢風美容店裝修設計平面圖
輕奢風美容店裝修設計平面圖,三角形的區域設計,功能分區使用,配套設施簡潔完善。

深圳市南山區南油輕奢風美容店裝修設計前臺

深圳市南山區南油輕奢風美容店裝修設計休息區







