伴隨著國力的增強,人們的文化自信也在同步提升,由此也掀起“中國風”的復興。本項目位于深圳羅湖東門南路3013號金城大廈,是一個新中式家庭空間室內設計案例,極具氛圍感的裝修圖體現出設計師在探尋摩登的設計之路中,融入本土意識,逐漸形成了前衛時尚又透著典雅秀美的新中式風格。這套新中式風格居室設計中,中式元素清新質樸,與現代材質交相輝映,再現移步換景的精妙小品。如此形成了中華傳統文化在當今時代背景下的演繹。空間的層次感,得到了全新的闡釋。對于分割出的小面積功能性空間,采用嵌入式的裝飾展示陳列柜作為增添空間藝術氛圍的手法,而在需要隔絕視線的地方,則借鑒中式屏風,通過定制圖案的烤漆玻璃實現,通過這些分隔方式,整體的室內環境展現出中式家居的層次之美。

深圳羅湖新中式家庭裝修客廳的布局方式,端正穩健,格調高雅。

純色系家具及同系列的地毯應用,仿佛賜予了這片狹小空間生命的活力。

精致的吊頂,以及茶幾上擺放的通透質感的玻璃綠植器皿,在室外采光的映襯下顯得穩健成熟。

細節中,能夠感受到居室的主人性格沉穩,并且具有文人氣韻。

深圳羅湖新中式家庭裝修的過道空間氣韻靈動,充分體現出新中式風格的美學精神。

深圳羅湖新中式家庭裝修的餐廳不僅為主人提供了用餐的空間,同時也是主人感受新中式文化的場所。

廚房的設計保留了業主對新中式風格執著喜愛的同時,避免中式元素的簡單羅列和疊加,做到中式元素與現代材質巧妙兼柔。

餐廳的細節處理中不斷呈現移步變景的精妙小品,讓生活頓時充滿情趣和靈感。

深圳羅湖新中式家庭裝修最終呈現給居者的空間——筆休書香沁滿廳,老舍雅趣處處景。

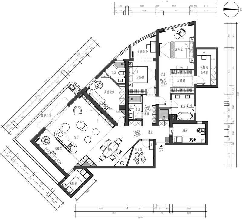
深圳羅湖新中式家庭裝修—平面布置圖





