本項目在繼承傳統的基礎上致力于革新,突破原有的格局。鑄造一個藝術與美學并存的居室空間,位置坐落于深圳福田區梅林龍尾路東側,南開附中、基督教堂北側—“新世界四季山水”,是一套現代中式奢華家居裝修工程案例。化繁就簡、自由和灑脫的現代中式設計語匯,將高級灰色系的雅澹柔和、現代材質的奢雅質感鋪排出簡練純粹。高挑的空間與錯落的光影,在有限的空間中制造浩瀚感,將無盡的嘈雜封鎖于另一種空間之中,沉在浮光碎影中相互連接。獨特的燈光設計投射下柔潤光線,與室內環境形成一種自然互動的詩意。同時空間的多樣性令人著迷,在功能區域的劃分下呈現不同的玩味。

深圳福田區現代中式奢華家居玄關的藝術水景以豐饒的創意表達出當代藝術與中式文化的統一性,充盈著現代中式的藝術觀感。

深圳福田區現代中式奢華家居過道空間精選的材質與恰如其分的設計,細節之中透露低調的質感。

深圳福田區現代中式奢華家居客廳的層次之美,注重虛實的結合。

大面積的玻璃窗引入自然光溝通內外,成為客廳最美的景致。

深圳福田區現代中式奢華家居茶室里的家具成為空間的主角,居者凝視自然的時候也將成為時間的觀者。

深圳福田區現代中式奢華家居茶室的設計從人文關懷所產生的哲學最終以空間語言給予情感的喜悅。

深圳福田區現代中式奢華家居的主臥空間注重空間的穿透性,回歸本質的生活。

深圳福田區現代中式奢華家居主衛直線型的立面線條,藝術氣質的特色調燈,展現出亦動亦靜的空間層次之美。

主衛空間淡雅的原木色調搭配干練的線條設計,散發高雅卓越的低調氣息。

次臥空間以現代中式主義為創意原點,理性思考,浪漫表達,于凝練的現代空間中,用詩心畫意細細勾勒,構筑出融納美學與功能、自由與舒適并存的藝術美學空間。

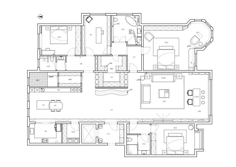
深圳福田區現代中式奢華家居裝修—平面布置圖






