時光不斷累積,
回憶卻一直在沉淀,
喬治弟弟從小就和父母生活在深圳羅湖,
直到后來搬至新家:深圳龍華新區-龍光玖悅臺,
但每當想起或者路過羅湖,都會喚醒記憶中自家獨棟大屋的愜意。
一次和先生逛街時
無意中看到廣告里的這套房子,
得房率超高,戶型也很正氣,商量后果斷買了下來。
就像有一根紅線把自己的過去和未來相連,
大概這就是緣分使然與一直以來的品味和習慣,深圳龍華家庭新房全包裝修方案,業主決定沿用相似羅湖其舊房簡約風格,還原一直以來家居生活中早已習慣了的獨特溫暖。
屋主透露自己偏愛深色系,因此,設計的顏色搭配的主調定位為沉穩的高級灰,讓人走進這個家就能感受到屋主的品位不俗。
為了提升空間感,地磚通鋪,不同質地和深淺不一的灰搭配燈光設計讓空間呈現更多靈動和韻律感。
局部的異類材質吊頂,搭配低飽和度度得木飾面,有效掩飾了瑕疵之余,還豐富了空間層次。
電視背景墻的處理如出一轍,深色胡桃木飾面搭配高檔的環保啞光灰色乳膠漆,通過材質的和諧實現空間的對話和串聯,賦予變化,打破單調。
廚房采用薄邊落地藝術玻璃門設計,讓光線更好的進入餐廳。
一個理想的玄,除了可以歸置下日常穿的鞋子以外,還要有可以舒適換鞋的換鞋凳,和進門隨手放包包、快遞、購物袋的地方,而且一定要保證好看!就像這個玄關一樣,正好滿足屋主的所有想象。
主要是業主會放些雜志、小說之類,平時可以約上三五好友一起喝喝紅茶看看小說。
定制的書柜大移門,既能點綴整個空間的色彩,又能強烈呼喚出濃濃的設計氣息。
陽光從百葉簾間鉆進室內,打在木飾面墻上,藝術漆顯現的獨特紋理仿佛一朵朵云彩漂浮其間,呈現美好的光影效果。
沙發背景采用高級灰藝術漆,別具一格的粗獷質地奠定整體格調。
每個空間都應當承載著各自的情緒,臥室理應歸屬于寧靜和溫馨。墻布紋理背景呈現獨特的內收結構,拓展空間視覺邊界,深色木紋和灰色的玻璃豐富色彩層次,提升空間厚度。
內嵌式的衣柜搭配簡潔落地式的通體門板,不僅簡潔大氣,而且令空間的高度在視覺上更舒服。
真皮質感的睡床搭配簡潔布藝的床飾,這種高檔的素雅感充分體現了一份脫俗的自信。
大理石和木飾面的結合,獨特空間色彩感與實用收納并存。
高科技的3D壁爐,進一步升華了空間的氛圍,營造出體貼溫暖的感覺。
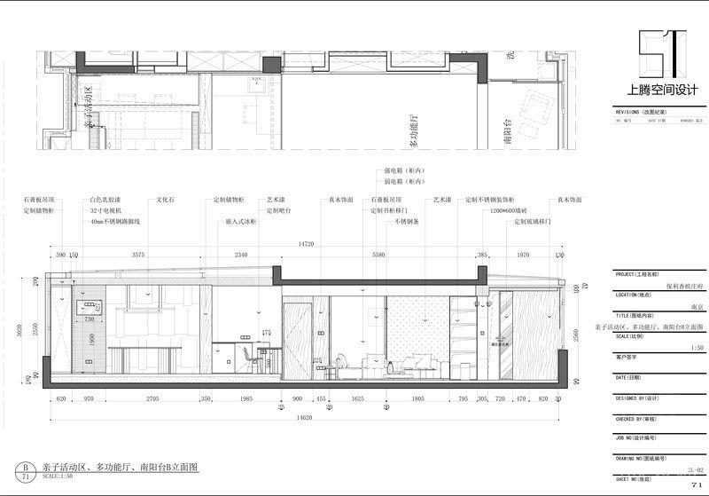
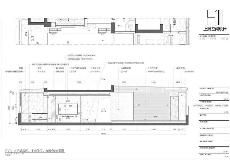
對于業主來說,此次裝修中最重要的需求之一就是增加一個親子活動區。經歷疫情之后,在家里的時間長了很多,越發覺得這個決定非常明智。
兒童房選擇了極具表現張力的藍色為主色調搭配原木色家具及定制儲物及展示的柜體,滿足了實用及視覺,同時保留了一份童年的純真。
一層原始平面圖
一層平面布置圖
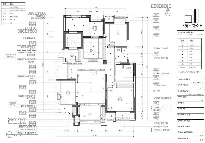
一層天花吊頂布置圖
二層主立面圖1
二層主立面圖2







