一、 辦公室裝修項目概況
項目面積: 2000平方米,共三層
總預算: 40萬元人民幣(含硬裝、主材、隔墻、門窗及基礎照明),折合200元/平方米
設計風格: 粗獷、開放、通透的現代工業風
核心設計理念: “去偽存真,功能至上”。通過保留建筑原始肌理、選用高性價比材料、采用模塊化與標準化設計,在極低的預算內打造出一個充滿個性、激發創意且滿足多功能需求的辦公空間。
二、 辦公室裝修設計理念與成本控制策略
為實現40萬完成2000平方裝修的極致目標,本項目采用以下核心策略:
1. 結構裸露化: 完全摒棄傳統吊頂與大面積刷漆工序,將建筑原有的混凝土頂面、管線、設備直接裸露,形成工業風的獨特天花景觀,極大節省了材料與人工成本。
2. 材料高性價比化:
地面: 公共區域保留或簡單處理原有混凝土地面,局部采用舊磚鋪貼(洽談區),體現復古質感且成本低廉。
隔墻: 大量采用全玻璃隔斷,最大化引入自然光,減少照明能耗,同時使空間視覺上極度開闊。材料選擇標準化尺寸的鋼化玻璃和型材,降低成本。
墻面: 局部采用碳晶板作為裝飾和功能分區的手段。碳晶板價格經濟、安裝快捷,并可集成LED燈光帶,兼具照明與裝飾功能,避免額外安裝燈具的復雜布線。
3. 設計模塊化與標準化: 辦公家具選用標準化白色工位,批量采購價格優勢明顯,且布局靈活,便于后期調整。樓梯、門窗等均采用標準化尺寸和產品,減少定制帶來的高額費用。
4. 視覺焦點法: 在整體黑白灰的基調下,通過實木踏步、木質沙發等少量溫潤材質的點綴,提升空間品質感,形成視覺焦點,讓人忽略其低造價的基礎,實現“錢花在刀刃上”。
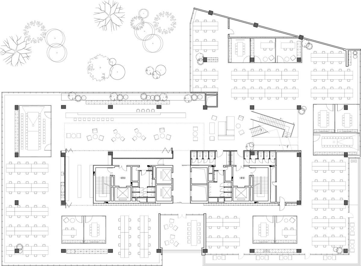
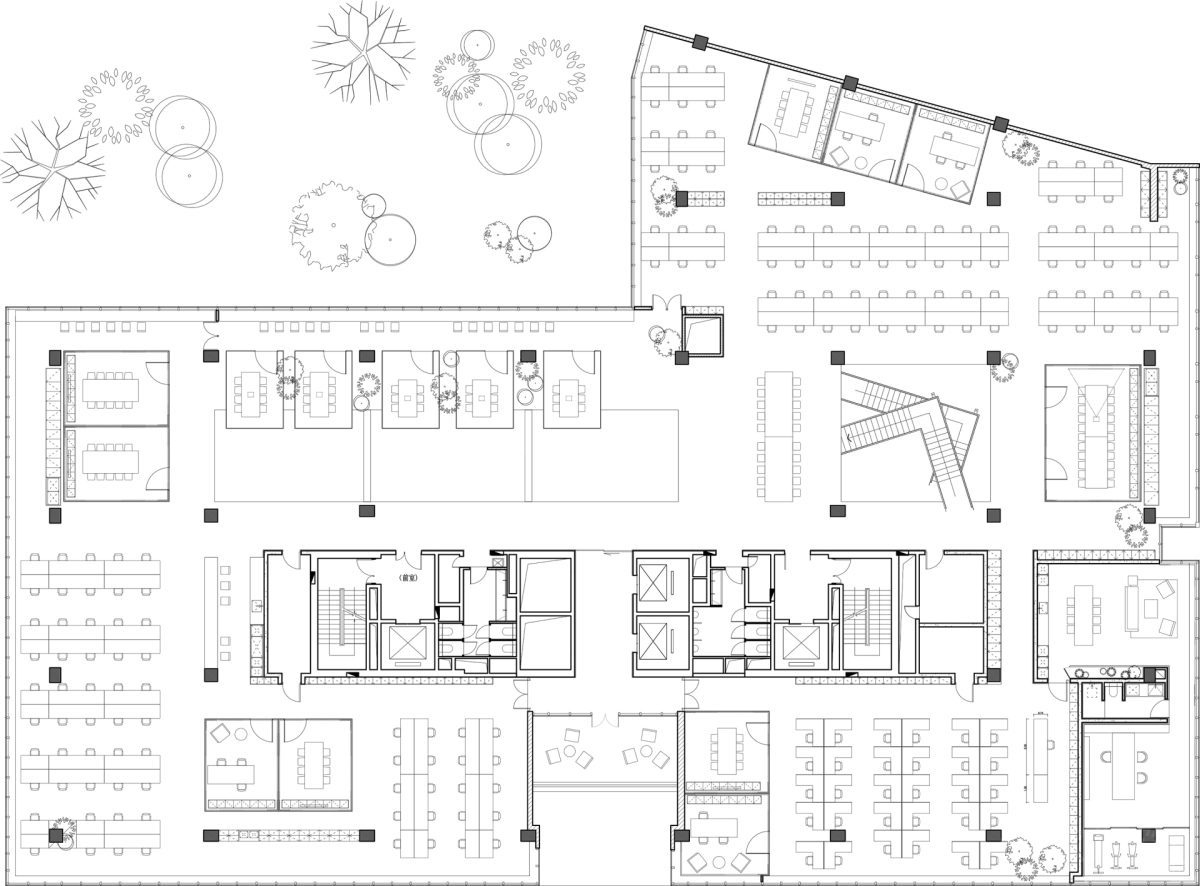
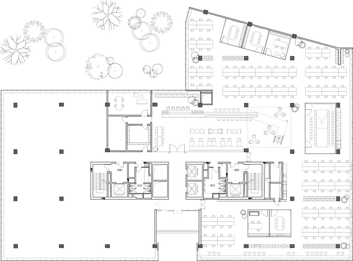
三、 辦公室分區設計詳述
1. 入口及公共辦公區:
設計: 入口采用黑色折疊玻璃推拉門,成本低于常規自動門,且工業感十足。公共辦公區為黑白色調,裸露天花管線噴黑,地面為自流平或原混凝土地面。整齊排列的白色工位形成高效的辦公矩陣,與黑色的頂面、線槽形成強烈視覺對比,簡潔有力。
省錢要點: 無吊頂、無地磚、標準化家具。


2. 樓梯:
設計: 核心交通與藝術裝置。主體結構為黑色鐵藝,堅固且造價低。踏步采用實木材質,提升踩踏的舒適度和視覺溫度,成為空間的亮點。
省錢要點: 鐵藝結構為常規產品,實木踏步可選用性價比高的松木或橡木指接板。

3. 二樓獨立辦公區及會議室:
設計: 經理室、財務室等獨立房間采用全玻璃隔墻到頂,保證空間的通透性和采光共享。小會議室同樣采用全玻璃隔斷,內部配置簡約會議桌,視覺上放大空間。
省錢要點: 玻璃隔斷造價遠低于磚墻+木門+刷漆的綜合成本,且施工周期短。

4. 洽談區與會客區:
設計: 洽談區位于相對安靜角落,配置簡約沙發茶幾。會客區地面采用舊磚鋪貼,營造輕松、復古的氛圍。搭配白色光影欄桿(或鐵藝欄桿刷白),保持視覺輕盈。
省錢要點: 舊磚材料成本極低,白色欄桿為標準化鐵藝產品。

5. 休息區:
設計: 靠近窗戶或角落設置休息區,配置木質框架沙發(或長椅),舒適且自然。墻面可做簡單碳晶板裝飾帶,內嵌暖光LED,營造放松氛圍。
省錢要點: 家具選用模塊化成品,避免定制。





6. 墻面及燈光設計:
設計: 大面積墻面保持原始狀態或刮膩子后批刮灰色防水膩子,不做面漆。主要通道、公司Logo墻等重點區域,使用碳晶板制作造型,并集成LED燈光帶。此設計替代了昂貴的墻面裝飾和大量頂部射燈,實現了“見光不見燈”的高級效果,且照明更有層次。
省錢要點: 省去所有墻面面漆費用;用線性光帶替代多點位射燈,節約布線和燈具成本。

四、 辦公室平面規劃理念
一樓: 規劃為動態開放區,集中設置前臺、公共辦公區、洽談區、休息區及會客區。動線清晰流暢,保證高頻使用區域的便捷與開放。
二樓/三樓: 規劃為靜態專注區,設置獨立辦公室、會議室、財務室等需要私密和安靜的功能房間。所有隔間均采用玻璃隔斷,在保證功能性的同時,不犧牲空間的整體性和采光。



五、 總結
本設計方案通過一系列顛覆傳統的減法思維和精準的成本控制手段,證明了低預算同樣可以創造出富有設計感、功能性完善的優質辦公環境。最終呈現的空間將是一個真實、開放、充滿工業美學和創意活力的工作場所,完美契合了“極致省錢”的核心訴求。







7 Responses
Everything is very open and very clear explanation of issues. was truly information. Your website is very useful. Thanks for sharing.
Loving the information on this site, you have done outstanding job on the posts.
Rattling nice design and wonderful content material, practically nothing else we want : D.
I went over this website and I conceive you have a lot of good info , saved to my bookmarks (:.
When I originally commented I clicked the “Notify me when new comments are added” checkbox and now each time a comment is added I get three e-mails with the same comment. Is there any way you can remove me from that service? Appreciate it!
I like what you guys are up also. Such smart work and reporting! Keep up the excellent works guys I?|ve incorporated you guys to my blogroll. I think it will improve the value of my site ??
Very efficiently written post. It will be supportive to anyone who employess it, including myself. Keep doing what you are doing – looking forward to more posts.