項目地點:深圳市龍崗區布吉
設計理念:這是一個在商場原安全通道基礎上改造的理發店。從設計到施工結束的周期大概一個月的時間,時間很短,限制很多,要求很多。不能有任何的固定隔墻,所有空間中可見的墻體都是臨時的必須可移動的。包括吧臺,鏡面,柜體都是可移動的。在有限的面積里,需要滿足員工休息區,洗頭區,vip護理區,雜物收納間,等待區,不少于12個的理發位,和足夠的收納等等。設計以塊面的穿插,鏡面的反射來趣味整個空間,藍色作為對比和跳躍,在灰白的空間中去做出打破。

▼入口空間

簡約的小理發店入戶裝修設計
入戶的裝修設計,保留了原結構的水泥質感墻面,弧形和圓柱的造型設計,使得整體效果更開闊,空間感更強,白色和灰色的對比色彩,顯現出素雅簡潔的質感和極簡風的極致之美。
▼收銀臺

簡約的小理發店收銀臺裝修設計
灰色的造型前臺,凸出了工業風的粗獷和原始,搭配水泥的肌理體現,展現出冷色調的孤傲和自由質感,紫色造型柱子的點綴,活躍了整體的氛圍,色彩對撞的方式讓空間靈氣十足。
▼入口處的理發區,懸掛的鏡面分隔區域,令空間更為豐富


▼主空間和入口區域之間設有矮隔墻,視線相通


▼鏡面分隔理發區,反射形成豐富的空間效果

簡約的小理發店理發區裝修設計
金屬鏡面代替的傳統隔墻,不能用新型材料展示出現代簡約風的時尚和與時俱進的潮流感,使造型空間和大廳有功能性上的劃分,同時通過鏡面的的折射效果,讓空間層次疊加更豐富。

▼不同功能區域通過窗簾分隔


▼空間細部
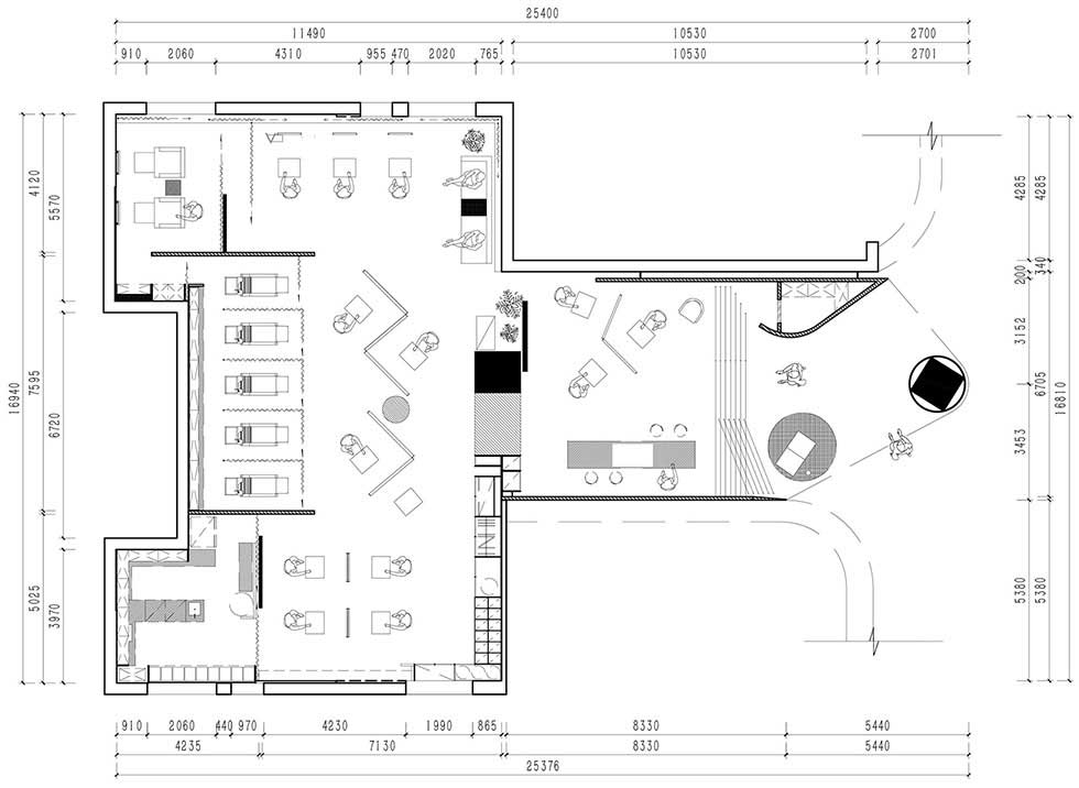
▼平面圖

簡約的小理發店理發區裝修設計平面布置
理發店的平面布置,色彩著色上利用原始的水泥灰色調,體現出水泥的肌理和質感,通過曲線型的空間結構設計,在光影的折射下,體現出整體空間的靜謐和時尚的元素。







