項目地點;深圳市南山區華僑城
設計理念:本案是一所現代風的美學生活館裝修設計案例,現代風格是比較流行的一種風格,追求時尚與潮流,非常注重居室空間的布局與使用功能的完美結合。普遍適用于中小企業。造型流暢,大量運用線條,喜歡用植物裝點各個角落,通過光和影的應用效果,在較小的空間內制造變化,在線條和光影變幻之間找到對心靈的沖擊。
余味美學生活館位是一個建筑面積350平方米,集居服飾、美容設施于一體的生活館,其坐落于老巷中心轉角區域。這是一條有歷史、有故事的老巷,我們要尊重和保留其文化與統一,故而外立面我們盡可能做到簡約。
喧鬧的老巷中包含著五顏六色的燈光和廣告牌,卻有一處燈光,它沒有那樣絢麗多彩,但它散發出的光卻似黃昏般溫暖柔和,給人留下深刻的印象
干凈簡潔的白色大塊面外立面,在色彩過于斑斕的老巷中更易脫穎而出。又不破話整體的和諧。這是新設計與老建筑間的對話,也是一種沉淀多年的涅槃新生。
素雅的空間體現一種柔美自信的張力,地面采用有歷史感的水磨石,與室外老街相呼應。拉絲金的現代裝飾,恰到好處的點綴在其中,使空間變得更加精致

深圳余味美學生活館前臺裝修設計
此隔斷墻區域,使室內與室外的景致即分割開又有著緊密聯系,過往行人隱約可見隔斷墻體間隙中透露出的空間、人影及動作。吸引著行人的好奇心,激發人
們入內探秘的欲望
深圳余味美學生活館等待區裝修設計
一樓等待休息區。沙發個性卻不張揚的顏色,賦予了空間無限活力。

深圳余味美學生活館等待區裝修設計
樓梯,采用復古懷舊鐵藝的扶手,其線條單純而明快。

深圳余味美學生活館樓梯裝修設計
二樓大廳整體空間,我們營造了一種居家放松舒適的空間環境。采用木飾面裝飾,賦予空間一絲溫度。天花板的圓形吊頂,寓意著圓潤和諧


深圳余味美學生活館大廳裝修設計
▼除了木飾面,我們還大面積采用了皮紋墻紙,使極簡的空間中透露出一絲的細膩與親切感,圓弧形的隔斷墻與裝飾讓空間更加包容、靈動、流暢

會議室采用通透的落地玻璃,讓大廳視野顯得更加開闊的同時,也使整個美容空間顯得更加的專業

深圳余味美學生活館會議室裝修設計
簡潔干凈的辦公室

深圳余味美學生活館辦公室裝修設計
包間內部:在燈光設計上,我們盡可能使用暗藏式燈光,使空間氛圍更加柔和、舒適、放松


為了讓客戶在空間中足夠的放松,在空間造型的設計中我們做了很多的減法,比如隱藏式的房間名稱標識
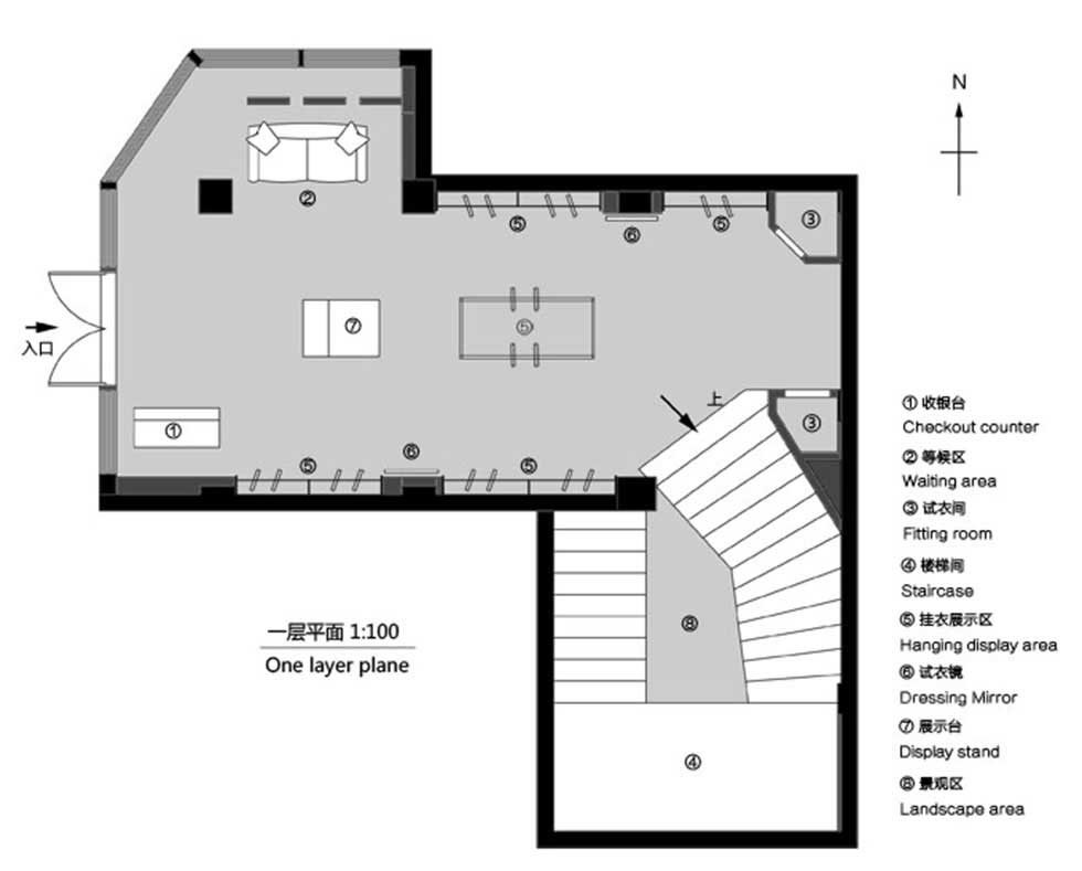
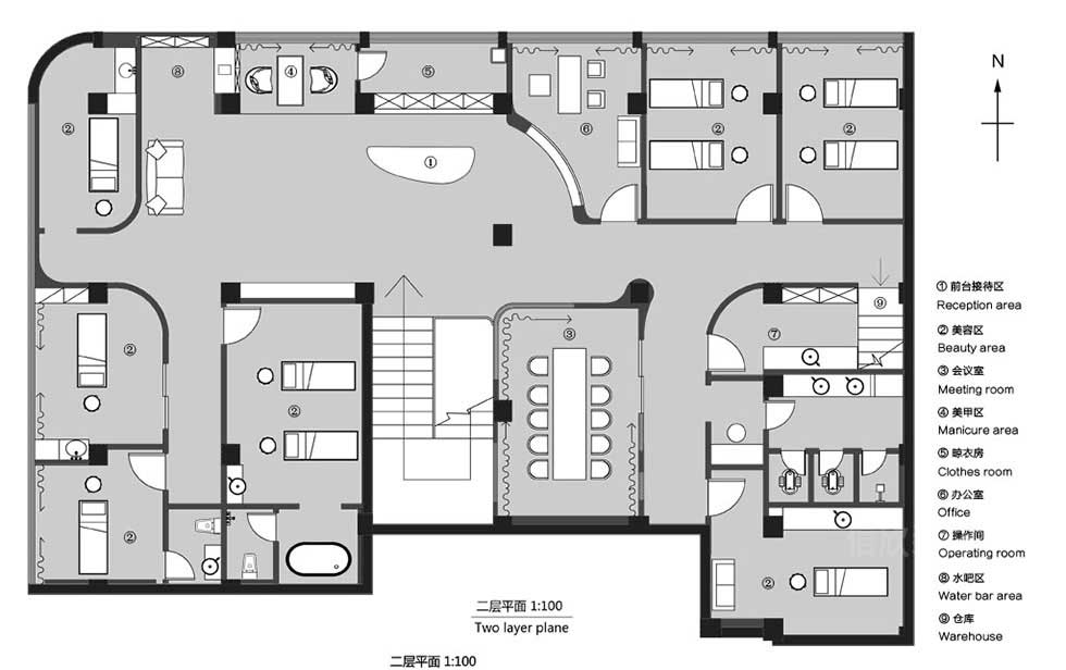
▼平面圖
▼一樓

▼二樓








